HGV Custom 002 10.5x25
Single Storey
Lot #215, Saltbush Drive, Parkview Estate, Lara VIC 3212
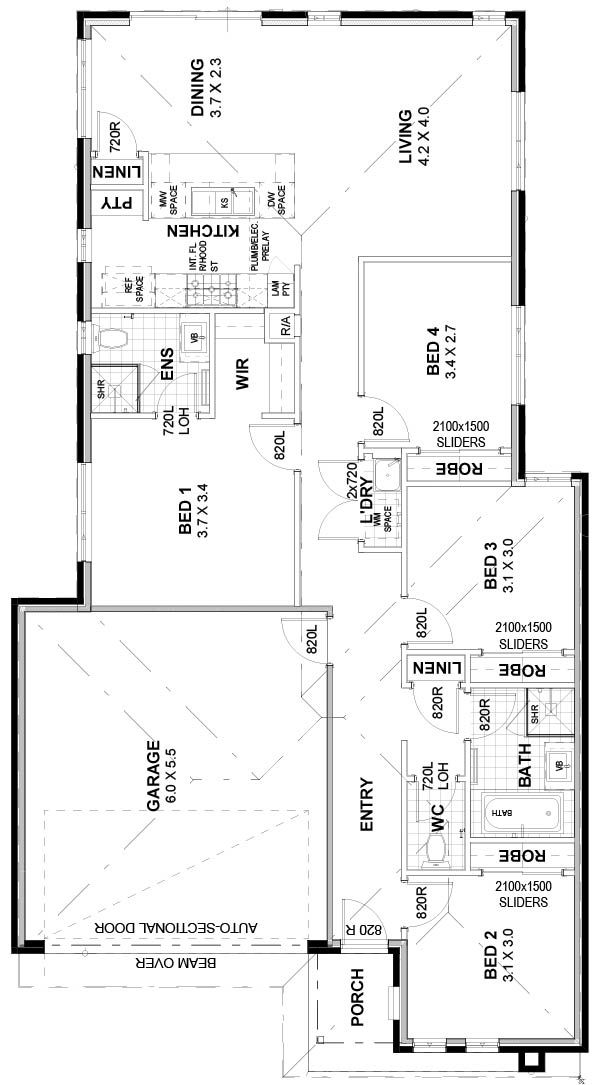
4
2
2
10.5m


Whether you are a first home buyer, second or third home buyer, investor, single storey or two storey buyer, Home Group has a range of home designs and finance options to suit you. Home Group delivers unrivalled value for money with luxury house and land packages at an affordable price. To get started on your home and land journey, enquire down below.
Browse the inclusions
Luxury Kitchen and Standard Inclusions Designer Kitchen and Standard Inclusions Classic Special Inclusions Classic Inclusions
-
Luxury Kitchen
-
Electrolux double wall ovens
-
Electrolux 900mm 5 burner glass gas cooktop
-
Electrolux integrated rangehood
-
1200mm deep island bench with waterfall ends
-
Choice of multiple stone benchtop
-
European high gloss cabinetry
-
Double laminate pantry
-
Lift up overhead cupboards
-
Combination of cutlery, plate and pot drawers
-
Microwave recess with pot drawer below
-
Bi-fold appliance cupboard to corner variation only
-
Undermount sink
-
Pull out bin
-
Aluminium integrated finger grip handles
-
European designer mixer tap
-
European high gloss cabinetry to butlers pantry
-
Overhead cupboards to butlers pantry
-
Choice of multiple stone benchtops to butlers pantry
-
Single bowl sink to butlers pantry
-
Ducted heating
-
3 coat internal wall painting
-
2590mm high ceiling
-
450x450 main floor tiles
-
Loop pile carpets
-
Choice of designer facades
-
LED downlights throughout
-
Luxury laundry with stone benchtops and overhead cupboards
-
Double designer vanity to ensuite with stone benchtop
-
European flickmixer tapware throughout
-
European style rainhead showers to ensuite & bathroom
-
Designer square china vanity basins
-
Upgraded wet area tile selections
-
Tiled shower bases
-
Mirrored robe sliding doors to minor bedrooms
-
Lever door handles
-
Double lock up garage
-
Designer kitchen
-
Huge 1200mm wide island bench
-
Stone benchtops
-
European high gloss cabinetry including pantry
-
Lift up overhead cupboards with blum hinging
-
Extensive drawers
-
900mm freestanding stove and integrated rangehood
-
Built in microwave and dishwasher recesses
-
Ducted heating
-
3 coat internal wall painting
-
2590mm high ceiling
-
450x450 main floor tiles
-
Loop pile carpets
-
Choice of designer facades
-
LED downlights throughout
-
Designer cabinets with stone benchtops to ensuite and bathroom
-
Designer square china vanity basins
-
Designer 1m cabinet with stone benchtops and stainless steel inset trough to laundry
-
European style flickmixer tapware throughout
-
European style rainhead showers to ensuite and bathroom
-
Upgraded wet area tile selections
-
Tiled shower bases
-
Mirrored robe sliding doors to minor bedrooms
-
Lever door handles
-
Double lock up garage
-
Designer kitchen
-
Huge 1200mm wide island bench
-
Stone benchtops
-
European high gloss cabinetry including pantry
-
Lift up overhead cupboards with blum hinging
-
Extensive drawers
-
900mm freestanding stove and integrated rangehood
-
Built in microwave and dishwasher recesses
-
Laminate pantry
-
Flickmixer tapware
-
2590mm high ceiling
-
Loop pile carpets
-
Category 1 upgraded facade
-
Double designer vanity to ensuite with stone benchtop
-
European style rainhead showers to ensuite & bathroom
-
Double door entry to master bedroom
-
Double shower to ensuite
-
Classic kitchen
-
Stone benchtops
-
European high gloss cabinetry including pantry
-
Extensive drawers
-
900mm wide island bench
-
900mm freestanding stove and integrated rangehood
-
Built in microwave and dishwasher recesses
-
Flickmixer tapware
-
Loop pile carpets
-
Category 1 upgraded facade
-
European style rainhead showers to ensuite & bathroom
-
Double shower to ensuite


Testimonials
-
We have recently finished our build with Home Group and we were nothing but impressed! From start to finish we had great service from making changes to our house several hundred times, smooth admin process, to the trades being great to deal with on site or over the phone, to handover / final inspections. Our house was finished 3 months ahead of schedule which was exceptional considering we built a two story home. There inclusions are great and add style to your home with the high quality finishes. We would highly recommend Home Group to anyone looking at building their dream home!
Ashlee Panting
-
We have just moved in to our dream house built by Home Group. We would like to thank the company for such a smooth and enjoyable process in building our new family home. Well done to all and thank you for a great experience and product in our family home that you have created for us.
Kylie Gallagher
-
Building with HomeGroup was amazing. From choosing our block of land to house plan and all of the little bits. They were informative and thorough when explaining each variations that came up. We are now happily enjoying our new home and if we ever built again we will be using Home Group again. 5 stars!
Tara Blundell
-
Thank you Home Group for making our dreams come true, from start to finish we had fantastic service all the staff are very helpful. They made our wish come true we never thought it would happen but from finance right through to handover of our keys the staff, supervisor & trades worked so hard to realise our dream & it was so easy with friendly reliable people that worked hard for us thank you Home Group.
Vanessa Wilde
-
Our build with Home Group was the smoothest process we could’ve asked for. Our completed home is of the highest standard and we couldn’t be happier! Thank you Home Group for building our dream family home!
Mat & Renee
-
A huge thank you to Home Group for the most incredible build experience. From the moment we met Dean, to Prestart, to our amazing Liaison Deanne, and incredible supervisor Frank - the level of service and support provided was exceptional throughout.
Our home was built a month ahead of schedule, and the quality of workmanship is superb.
And we couldn’t be happier with the finished product.. Can’t believe that most of our final lux finish fell within the standard Home Group options!
Would recommend to anyone looking to build in Perth.Jemma Sneddon
-
A huge thank you to Home Group for an outstanding build. We simply couldn't be happier with the whole journey thanks to brilliant staff and customer service. Everything went smoothly and ahead of schedule and we love our new home.
Peta Grzelec
-
Thank you Home Group for our new home. Needing to downsize our consultant came up with this design and it was a great choice. We have been in for 3 weeks now and love it. Being in sales myself I know how important customer service is and Home Group ticked all the boxes from start to finish. The communication was first class and we were advised of progress constantly. From pre-start to hand over it was smooth and quick. We love the Designer Kitchen and the scullery finishes it off so well. The bottle of Moet we were presented with was a nice touch and our first guests will be friends from Victoria so we will pop the cork and toast our new home with pride. Thank you Home Group for a smooth and painless build.
Stuart Kamasz
-
Would just like to say a massive thank you to Home Group for the wonderful job they did building my investment house. These things are sometimes stressful but Home Group definitely made it easy for me. I have never seen such good customer service as well as quality! Would definitely recommend Home Group to build your dream home!
Nick Falcone
-
We had an amazing experience building with Home Group! From the very beginning to handover, the communication and quality of workmanship was phenomenal. We are in love with our home and our family and friends are completely wowed too. We are so glad we put our trust in this builder to bring our first home to life - definitely recommend!
Alisha & Jimmy
-
Our experience from the beginning was amazing! The communication was outstanding and we were always kept well informed. The workmanship at each stage was to a high standard and even now, after having lived in our home for a few months now, there are minimal faults. HomeGroup haven’t just built us a beautiful house, but a home that our family can enjoy for years to come.
Sam & Tony
-
We can't thank Home Group enough for our beautiful new home. We have been in for over a month now and we love our house. Building with Home Group was such a smooth experience and was made easy for us being first time builders. The customer service was and continues to be great. We had a fantastic team taking care of us throughout the whole process and I would most definitely recommend Home Group to anyone looking at building their new homes!
Jess Guzman
-
Beautiful Kitchen. It's the best house in the world.
Pallan Family
-
Highly recommended Homegroup for any new build, we would go with them again. I can't believe how beautiful our kitchen is, it's the heart of our house, where we all bond together, it's the highlight of our house and we get a lot of compliments on it. The whole journey was as smooth as it could be.
Sayali & Aniruddha
-
Building with HomeGroup WA was one of the most enjoyable experiences of our lives. From the first meeting with our sales consultant, right the way through to key handover with our liaison was flawless. They couldn’t do enough for us and made every step both informative and exciting. We have ended up with an incredible first home and one which we are immensely proud of. We feel extremely lucky to have had this experience and truly hope others will consider HomeGroup in the future.
Carl & Sam
-
We just wanted to say thank you again for our beautiful new home! We fell in love with the design the minute we walked into the display home. Scott is a real asset to company - he guided us through the entire process and answered all our questions patiently. He even checked in on us throughout the build. James the supervisor was great too! Quality of the build was excellent - dad used to be a builder and he could not fault a thing! Would have no hesitation in recommending Home Group to anyone considering building a new house.
Vickey Payne
-
We had an AMAZING experience building our first home with Home Group! Everything went so smoothly - any issues or concerns were addressed immediately by the friendly team and we always felt like we knew exactly how everything was progressing. Looking forward to creating memories in our new home!
Simone Goncalves
-
My husband and I have both had the most amazing experience building with Home Group. From beginning to end they made our tragic circumstances into a smooth and happy time. From planning, contracts, prestart, builders, tradesmen, supervisors and anyone I've inadvertently missed, THANK YOU.
Dianne Glossop
-
Would like to say a big Thank you to Home Group for building our dream home. Home Group were professional and so helpful the whole way through the build. We cannot thank them enough for everything they did for us. We will be recommending them to everyone. We couldn't be happier with the entire process Thank you!!
Sarah Bent
-
Everyday is waking up with a smile in our new home. The entire process was seamless from Gareth the most skilled designer possible, to Ernie the Finance Master, to Matt the most professional and empathetic supervisor, to Emma the bricklayer extraordinaire, to Ken the guru of tiling and all the other professionals who I didn't meet but completed all work to high standards to make our house not only a home but a pleasure.
Tyra White
-
Thank you Home Group for helping us build our dream home. Staff were professional and helpful throughout the entire process. The only company I would recommend, especially for first home owners.
Renae Murcia
-
From a pile of sand to a beautiful home, I can't thank Home Group enough. I was nervous about building my first home as a single young female but Home Group made it easy. The whole process ran smoothly and I was always kept updated with the progress of my home. I am so happy with the final product and I would highly recommend Home Group to anyone looking to build.
Josie Dogulas
-
Thank you Home Group for making my journey in building our new house so smooth and hassle-free.
I love my kitchen so much..
You really do a great job...
I will definitely recommend you to my friendsJane Uy
-
We are so over the moon with our new home that was built by Home Group!
It was a completely unflawed process, with impressive inclusions plus a prompt and helpful team of staff in Balcatta.
We would happily recommend you as a builder to anyone.Chloe Isobelle
Please complete the form and one of our team will be in touch to assist you as soon as possible.
Thank you for your submission!
We'll be in touch soon!
*See terms and conditions for full details.
